Heeswijk-Dinther – Jan van den Boomstraat 5

Bent u op zoek naar een ruime vrijstaande woning met vrijstaande loods, in de omgeving van Heeswijk-Dinther? Dan is deze woonboerderij aan de Jan van den Boomstraat perfect geschikt voor u!

Deze gerenoveerde vrijstaande woonboerderij is gesitueerd in het buitengebied van Heeswijk-Dinther. Een mooie locatie, onder de rook van ‘s-Hertogenbosch, met alle voorzieningen op korte afstand. De grote vrijstaande loods biedt mogelijkheden voor verschillende doeleinden. Tevens heeft u de mogelijkheid de woning en loods met óf zonder het naastgelegen perceel grond te huren.

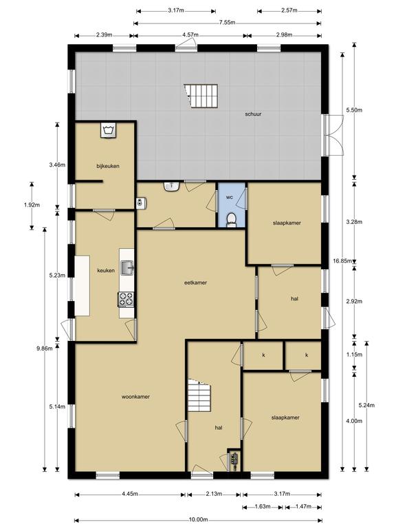
U betreedt de woning via het zijportaal. Op de begane grond treft u de eetkamer, keuken, zitkamer, bijkeuken, toilet en doorloop naar het achterhuis aan. Tevens bevinden zich op de begane grond twee slaapkamer. Deze zijn ook in te richten als kantoorruimte, werkruimte of hobbyruimte.

Middels een vaste trap is de eerste verdieping te bereiken. Hier treft u drie ruime slaapkamers en de compleet ingerichte badkamer aan. Tevens bevindt zich op deze verdieping een afzonderlijke toiletruimte.

Het achterhuis is in gebruik als schuur/opslagruimte. Middels een vlizo trap kunt u vanuit hier ook een ruime bergzolder bereiken.

Op het perceel bevindt zich naast de ruime loods ook een verharde inrit en een achtertuin.

De naastgelegen grond is momenteel in gebruik als weidegang. U heeft de mogelijkheid deze grond erbij te huren.

Het Woonhuis
Deze ruime woonboerderij is gebouwd omstreeks 1930 en in de loop van de jaren gerenoveerd. De woning is opgetrokken uit baksteen (spouw) met een dakbedekking van riet en pannen. De begane grondvloer is uitgevoerd in beton, en de verdiepingsvloer in beton en hout. De verwarming geschiedt middels radiatoren aangesloten op een aardgasgestookte cv-combiketel. De woning is voorzien van dubbele beglazing in hardhouten kozijnen. Het dak is volledig geïsoleerd.

De afwerking van de woning is veelal uniform met op de begane grond tegelvloeren, geverfd metselwerk en plankjes plafonds. Op de eerste verdieping vindt u laminaatvloeren, stucwerk wanden en stucwerk plafonds.

U betreedt de woonboerderij via het ruime zijportaal die uitkomt in de eetkamer. Vanuit het zijportaal kunt u ook doorlopen naar de eerste slaapkamer op de begane grond. Deze ruimte is tevens in te delen als kantoorruimte, hobbyruimte, speelkamer etc.

Middels een open verbinding met de eetkamer kunt u doorlopen naar de ruime zitkamer. De grote raampartijen in deze ruimte zorgen voor veel lichtinval.

Vanuit de eetkamer heeft u ook toegang tot de keuken. De keuken is uitgevoerd in een lengteopstelling met inbouwapparatuur zoals een rvs-spoelbak, 4-pits kookplaat, magnetron en oven, afzuigkap, koelkast en vaatwasmachine.

Vanuit de keuken heeft u toegang tot de ruime bijkeuken met de standplaats voor de wasmachine, en de doorloop naar het achterhuis. Ook bevindt zich hier de vrijstaande toiletruimte.

Vanuit de zitkamer komt u in de hal, waarin de trapopgang naar de eerste verdieping gesitueerd is. Tevens bevindt zich hier een tweede slaapkamer, welke ook voor andere doeleinden gebruikt kant worden.

Vanuit de overloop op de eerste verdieping zijn drie ruime slaapkamers te bereiken. Alle drie de slaapkamers zijn voorzien van een laminaatvloer, gestucte wanden en een gestukt plafond.

De ruime badkamer heeft een ligbad, lnloopdouche, inbouwtoilet en wasmeubel met spoelbak.

Op de eerste verdieping bevindt zich tevens een separaat toilet en ruime inloopkast.

Het achterhuis is in gebruik als schuur en is zowel vanuit het woonhuis als vanaf het buitenterrein te betreden. Middels een vaste trap kunt u de bergzolder in het achterhuis bereiken.

Het buitenterrein rondom de woning en loods is (deels) voorzien van erfverharding van klinkers en gestort beton. U heeft de mogelijkheid het naastgelegen perceel grond mee te huren. Deze grond is momenteel in gebruik als weidegang.

De vrijstaande loods, van ca. 20,00 x 14,00 = 280 m², is gebouwd in 1992. De loods is opgetrokken met sandwichpanelen wanden en dak, met een stalen spanenconstructie. De binnenwanden zijn halfhoog opgemetseld met kalksteen. De vloer is van beton (120 mm). De overheaddeur is handmatig te bedienen. De loods is voorzien van water en elektra (krachtstroom) met verlichting van TL-balken. De vrije hoogte is ca. 4 meter.

Gegevens inzake huurcontract:
– Aanvaarding: in overleg
– Termijn: maximale huurtermijn van 24 maanden
– Betaling: per maand vooruit te voldoen
– Opzegtermijn: 1 jaar voor expiratiedatum
– Bankgarantie: ter grootte van drie maanden huur
– Huurindexering: jaarlijks, voor het eerst één jaar na de huuringangsdatum
– Btw: er kan voor de loods geopteerd worden voor een met btw belaste huur
– Huurprijs woning, loods en perceel grond: € 2.850,- per maand
– Huurprijs woning en loods: € 2.750,- per maand
– Bezichtigingen: uitsluitend op afspraak met de makelaar.

In verband met de privacy van de huidige huurder zijn de interieurfoto’s getoond in deze brochure gemaakt voorafgaand aan de huidige huurtermijn.

Locatie:
Het object ligt centraal, en goed te bereiken middels de openbare verharde weg. De op-/afritten van de rijkswegen A50 en A59 ,en de provinciale weg N279 zijn binnen 15 autominuten rijden de bereiken.

Kenmerken

Status
Verhuurd
Adres
Jan van den Boomstraat 5
Postcode
5473 VZ
Plaats
Heeswijk-Dinther
Land
Nederland

Overdracht

Aanvaarding
In overleg

Bouw

Objecttype
Woonhuis

Oppervlakte en inhoud

Woonoppervlakte
196 m2
Gebruiksoppervlakte overige functies
102 m2
Oppervlakte externe bergruimte
268 m2
Buitenruimtes gebouwgebonden of vrijstaand
0 m2
Perceel oppervlakte
16.315 m2
Inhoud
1.110 m3

Indeling

Aantal kamers
6
Aantal slaapkamers
5
Voorzieningen
Mechanische ventilatie, Natuurlijke ventilatie
Perceel oppervlakte
16.315 m2
Inhoud
1.110 m3

Buitenruimte

Tuintypen
Tuin rondom

Garage

Soorten
Geen garage