Te huur: Representatieve en multifunctionele winkelruimte in het centrum van Oirschot
Bent u op zoek naar een multifunctioneel en zeer representatieve winkelruimte op een vrije locatie in Oirschot? Aan de Torenstraat 4, bieden wij een zeer representatieve en goed onderhouden winkelruimte te huur aan. Dit karakteristieke pand, oorspronkelijk gebouwd in 1830 en sindsdien met zorg onderhouden, combineert historische charme met moderne functionaliteit. Dankzij de grote raampartijen beschikt de ruimte over een lichte en open uitstraling, wat bijdraagt aan een aangenaam werk- en winkelklimaat.
Object
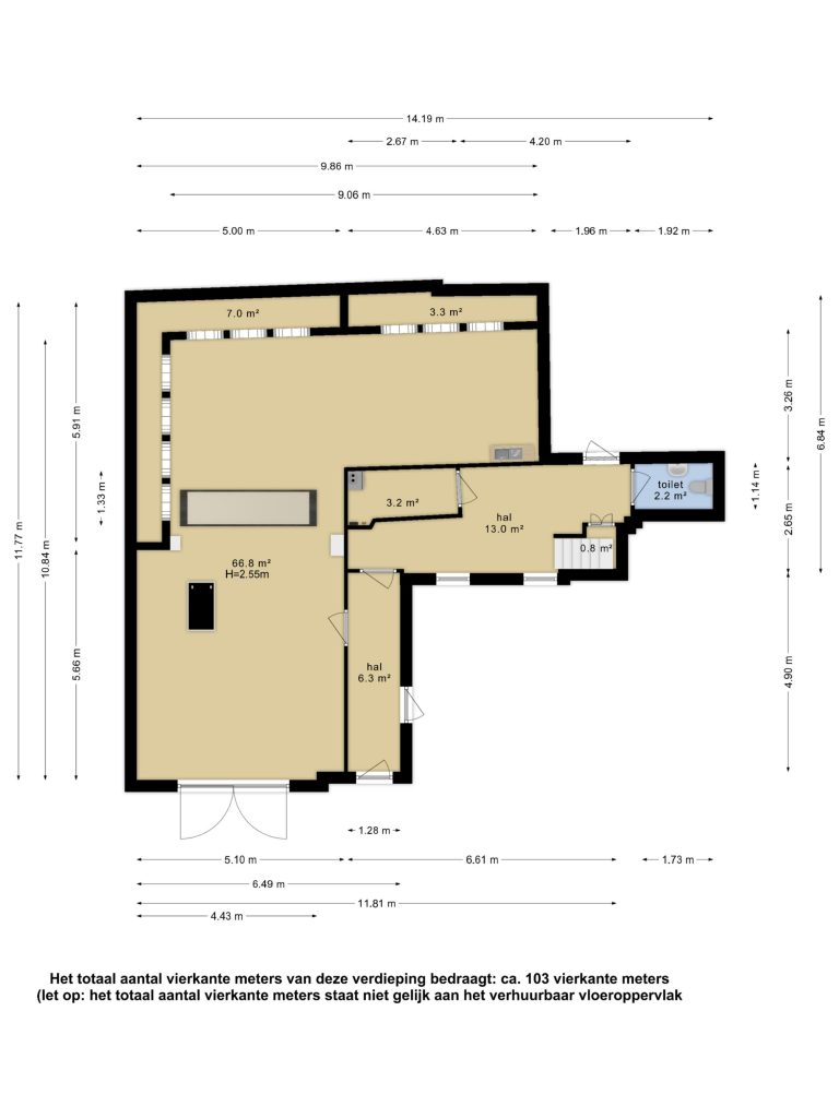
Via dubbele openslaande deuren is de winkelruimte direct te bereiken. Daarnaast is via een naastgelegen hal/entree het object te betreden. Naast de hoofdingang is er een zij ingang, welke de gemeenschappelijke ruimte betreft. Deze geeft via een entree toegang tot de gang en de gemeenschappelijke toiletruimte. In deze omgeving is tevens de technische ruimte gesitueerd. Boven de winkelruimte is via een vaste trap de bergzolder te bereiken, welke geschikt is ten behoeve van opslag. Hier is de schitterende houten spantconstructie van het object te zien. Daarnaast is de ruimte voorzien van een pantry, plafondafwerking en verlichting.
Parkeren
Voor de deur zijn diverse parkeerplaatsen aanwezig. Tevens zijn er op het plein voor de kerk ook voldoende parkeerplaatsen aanwezig.
Bereikbaarheid
Het object is goed bereikbaar via de toegangswegen naar het centrum. Het snelwegennet is op ca. 2 km afstand gelegen en de openbare vervoersvoorzieningen zijn goed bereikbaar. Er ligt een bushalte op geringe afstand.
Locatie
Deze winkelruimte is gelegen in het centrum van Oirschot op een herkenbare locatie. Het gebied wordt hoofdzakelijk gekenmerkt door winkelruimtes en horecagelegenheden. Het snelwegennet is gemakkelijk en snel bereikbaar evenals de openbaar vervoersvoorzieningen.
Kenmerken
- Adres
- Torenstraat 4
- Postcode
- 5688 AM
- Plaats
- Oirschot
- Land
- Nederland
- Prijs
- € 1.500,- per maand
Overdracht
- Status
- Beschikbaar
- Type aanvaarding
- In overleg
- BTW belast
- Nee
Bouw
- Hoofdbestemming
- Winkelruimte
- Jaar
- 1830
Oppervlakten
- Perceel
- 226 m2
- Winkelruimte
- 105 m2
- Winkelruimte in units vanaf
- 105 m2
- Winkelruimte verkoop vloeroppervlakte
- 105 m2
- Winkelruimte frontbreedte
- 630 m
- Winkelruimte horeca toegestaan
- Nee
- Winkelruimte bijdrage winkeliersvereniging
- Ja
- Winkelruimte welstandsklasse
- A1