Deze werkelijk prachtige woning biedt een schitterend vrij uitzicht en heeft daarnaast de beschikking over een vrijstaande garage met een complete woonunit. De groene achtertuin is volledig omheind en via een automatische draaipoort te betreden. Benieuwd hoe de woning er van binnen uit ziet? Lees dan snel verder.
Via de hal/entree betreedt u de woning. Hier bevinden zich tevens de meterkast en een trap naar de eerste verdieping. Van hieruit heeft u toegang tot de kantoorruimte en de ruime woonkeuken.
De kantoorruimte bevindt zich aan de rechterzijde van de woning en is ideaal voor wie thuis werkt. Mocht u deze ruimte niet willen gebruiken als kantoorruimte, dan is deze ruimte bij uitstek geschikt als speelkamer voor de kinderen.
Aan de voorzijde van de woning aan de linkerzijde bevindt zich de ruime woonkeuken. De eiken houten keuken is geplaatst in een rechte wandopstelling en een spoeleiland. De inbouwapparatuur bestaat uit onder andere een Quooker en waterontharder in het spoeleiland. Daarnaast ook uit een Borreti gasfornuis met bakoven en zes pitten, een afzuigkap, een combi-magnetron, een stoomoven, een koelkast en een vaatwasser. Deze keuken is echt van alle gemakken voorzien, waardoor u heerlijke maaltijden kunt bereiden. De ruimte is ruim genoeg om en grote eettafel te plaatsen en hier heerlijk te tafelen met uw familie of vrienden. Via de diverse dubbele openslaande tuindeuren heeft u toegang tot de fraaie en groene achtertuin. Tevens is via een trap de praktische kelder te bereiken.
De woonkamer treft u aan aan de achterzijde van de woning. Deze ruimte is ruim genoeg om een zitgedeelte en een extra eetgedeelte te creëren. Ook hier kunt u via dubbele openslaande tuindeuren de groene en privacybiedende achtertuin bereiken. De diverse ramen zorgen voor voldoende natuurlijke lichtinval. Daarnaast zorgt een gezellige gashaard voor extra warmte en sfeer tijdens de koude wintermaanden.
Als laatste bevinden zich op de begane grond een achterhal met separate toiletruimte, een extra gang met een tweede trapopgang naar de eerste verdieping en een praktische bijkeuken. In deze bijkeuken is een praktisch aanrechtblad geplaatst en een schuifkast met aansluitingen ten behoeve van de wasapparatuur. Daarnaast treft u hier de opstelling van de cv-combiketel (Nefit) en de warmwater boiler aan.
Via twee vaste trappen is de eerste verdieping te bereiken. Via de overloop heeft u toegang tot maar liefst vier slaapkamers, een separate toiletruimte, een walk-in closet en een complete badkamer. De grootste slaapkamer heeft de beschikking over een vaste wastafel. Alle slaapkamers hebben voldoende natuurlijke lichtinval door middel van ramen en dakramen.
De badkamer is compleet ingericht met een uitnodigend vrijstaand bad in het midden van de badkamer. Daarnaast treft u hier nog een inloopdouche en een wastafel aan. Via een raam verkrijgt u natuurlijke lichtinval en natuurlijke ventilatie naast de mechanische ventilatie.
Via een vaste trap is de tweede verdieping te bereiken. Vanuit de overloop met dakraam is de open zolderruimte te bereiken. Deze open ruimte is momenteel in gebruik als opslagruimte, maar zou ook gebruikt kunnen worden als hobbyzolder, sportruimte of bijvoorbeeld extra werkplek. Twee dakramen zorgen hier voor de natuurlijke lichtinval.
Vanuit de woonkamer en de woonkeuken loopt u zo naar het terras aan de woning. Naast het terras is de tuin voorzien van een haag en een groot gazon met een fraai uitzicht over de achterliggende landerijen.
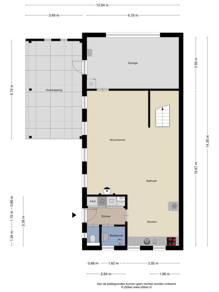
De vrijstaande garage is meer dan alleen een garage. Gebouwd van baksteen, voorzien van een elektrische overheaddeur, een praktische uitstortgootsteen en de omvormer van de zonnepanelen. Maar via de entree ontdekt u een multifunctionele woonunit die perfect is voor mantelzorg, gasten, werkruimte of een praktijk aan huis. In de entree vindt u een schuifkastenwand met aansluitingen ten behoeve van de wasapparatuur en een cv-combiketel. Tevens bevinden zich hier de separate toiletruimte en een doucheruimte met wastafel. De rest van de ruimte betreft de woonkamer met open keuken geplaatst in een rechte wandopstelling voorzien van diverse inbouwapparatuur, onder andere een keramische kookplaat, een afzuigkap en een vaatwasser. De gehele begane grond is voorzien van airco. Op de verdieping zijn vanuit de overloop drie ruime slaapkamers te bereiken waarvan één slaapkamer is voorzien van een airco. De gehele begane grond is voorzien van vloerverwarming en radiatoren. Buiten completeert een terrasoverkapping dit geheel tot een volwaardige woonvoorziening.
Bijzonderheden
– De CV-combiketel betreft het merk Nefit.
– De verwarming op de begane grond, de overloop op de eerste verdieping en badkamer op de eerste verdieping geschiedt door middel van vloerverwarming.
– De begange grondvloer en de eerste verdiepingsvloer zijn uitgevoerd in beton en de tweede verdiepingsvloer is uitgevoerd in hout.
– De woning is aangesloten op het glasvezelnetwerk, aardgas, water, elektra en riolering.
– De kozijnen zijn uitgevoerd in hout met dubbele beglazing.
– Gigantische woonoppervlakte van ca. 457 m² en inhoud van ca. 1.777 m³.
– Energielabel A+++ en voorzien van duurzame installaties.
– Vrijstaande stenen garage met complete woonunit.
– Rustige ligging, vrij uitzicht en een groene, landelijke omgeving.
– 54 zonnepanelen, bouwjaar 2012, capaciteit 14.500 kwh.
– Centrale unit ten behoeve van airco (deze is aangesloten op alle slaapkamers (4) en is ten behoeve van koelen en verwarmen) en een WTW systeem.
– Gelegen tegen natuurgebied De Maashorst.
– Afwatering in de bestrating aanwezig.
– Over de gehele achterzijde is een zonneluifel geplaatst.
– Het gehele terrein is afgerasterd (gedeeltelijk sierhekwerk) en voorzien van twee automatische poorten.
Waarborgsom/bankgarantie
Verkopers verlangen een waarborgsom/bankgarantie ter grootte van 10% van de koopsom.
Locatie
Nistelrodesedijk 19 ligt in het buitengebied van Vorstenbosch, een dorp dat bekend staat om zijn gemoedelijke karakter en groene omgeving. U woont u hier aan een rustige weg met vrij uitzicht, maar toch dicht genoeg bij voorzieningen in onder andere Vorstenbosch, Nistelrode, Uden en Veghel. De uitvalswegen richting ‘s-Hertogenbosch, Eindhoven en Nijmegen zijn goed bereikbaar.
Kenmerken
- Status
- Beschikbaar
- Koopprijs
- € 1.350.000,- k.k.
- Adres
- Nistelrodesedijk 19
- Postcode
- 5476 VJ
- Plaats
- Vorstenbosch
- Land
- Nederland
Overdracht
- Aanvaarding
- In overleg
Bouw
- Objecttype
- Woonhuis
- Bouwjaar
- 2009
Oppervlakte en inhoud
- Woonoppervlakte
- 457 m2
- Gebruiksoppervlakte overige functies
- 22 m2
- Oppervlakte externe bergruimte
- 0 m2
- Buitenruimtes gebouwgebonden of vrijstaand
- 26 m2
- Perceel oppervlakte
- 7.630 m2
- Inhoud
- 1.777 m3
Indeling
- Aantal kamers
- 6
- Aantal slaapkamers
- 4
- Voorzieningen
- Mechanische ventilatie, TV kabel, Buitenzonwering, Airconditioning, Dakraam, Glasvezel kabel, Zonnepanelen, Natuurlijke ventilatie
- Perceel oppervlakte
- 7.630 m2
- Inhoud
- 1.777 m3
Buitenruimte
- Liggingen
- Vrij uitzicht, Landelijk gelegen
- Tuintypen
- Tuin rondom
Garage
- Soorten
- Vrijstaand steen
- Voorzieningen
- Verwarming, Elektra, Water, Vliering, Elektrische deur