Huurprijs: € 1.100,00, dit is inclusief de bijdrage servicekosten
Minimale huurtermijn: 1 jaar
Indexering: CPI-all huishoudens
Ingangsdatum: per direct beschikbaar
Compleet 2-kamer appartement met groot balkon en parkeerplaats in parkeerkelder welke is gelegen op 5 minuten loopafstand van stadscentrum en nabij Centraal Station. Het appartement is op de derde verdieping gelegen van een complex van in totaal 56 appartementen.
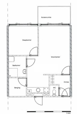
Indeling
Entree appartementencomplex
Centrale hal met intercominstallatie en brievenbus. Middels betonnen trappen alsmede een lift zijn de diverse verdiepingen/parkeerkelder te bereiken.
Het appartement is gelegen op de derde verdieping met eigen meterkast in de centrale hal. Via de hal met toilet en garderobegedeelte bereikt u de woonkamer. Iedere ruimte beschikt over een laminaatvloer in neutrale kleurstelling en de wanden en het plafond zijn in lichte kleurstelling afgewerkt.
De Z-vormige woonkamer geniet van veel lichtinval en middels de schuifpui en een extra loopdeur bereikt u het zonnige balkon. De zeer nette open keuken is voorzien van vaatwasser, combimagnetron, koelkast, diepvries en RVS afzuigkap. Tevens is er voldoende werkruimte en bergruimte aanwezig. Het appartement beschikt over één slaapkamer welke circa 12 m² groot is.
Vanuit keuken/woonkamer bereikt u tevens de badkamer en berging. De badkamer is geheel betegeld en voorzien van een douchecabine, wastafelmeubel met spiegel. De berging biedt voldoende opbergruimte en is voorzien van wasmachine- en drogeraansluiting aan, mechanische afzuiging en de cv-opstelling.
Parkeerplaats
In de parkeerkelder heeft u een eigen parkeerplaats. De kelder is afgesloten met een elektrische poort en is te bereiken via de trappenhal en/of lift.
Kenmerken
- Status
- Onder bod
- Huurprijs
- € 1.100,- p/m
- Adres
- Kamperfoeliestraat 16H
- Postcode
- 5342 CX
- Plaats
- Oss
- Land
- Nederland
Overdracht
- Aanvaarding
- In overleg
Bouw
- Objecttype
- Appartement
- Bouwjaar
- 2012
Oppervlakte en inhoud
- Woonoppervlakte
- 55 m2
- Gebruiksoppervlakte overige functies
- 0 m2
- Oppervlakte externe bergruimte
- 0 m2
- Buitenruimtes gebouwgebonden of vrijstaand
- 1 m2
- Inhoud
- 200 m3
Indeling
- Aantal woonlagen
- 3
- Aantal kamers
- 2
- Aantal slaapkamers
- 1
- Voorzieningen
- Mechanische ventilatie, TV kabel, Lift, Schuifpui
- Inhoud
- 200 m3
Buitenruimte
- Liggingen
- Aan rustige weg, In centrum, In woonwijk
- Tuintypen
- Geen tuin
Garage
- Soorten
- Parkeerkelder