Op een fraaie locatie in de kindvriendelijke woonwijk Heuveleind ligt deze verrassend ruime twee-onder-één-kapwoning met inpandige garage en vrijstaande tuinberging. Een zeer goed onderhouden woning die u door de efficiënte indeling veel meer ruimte biedt dan u zou denken.
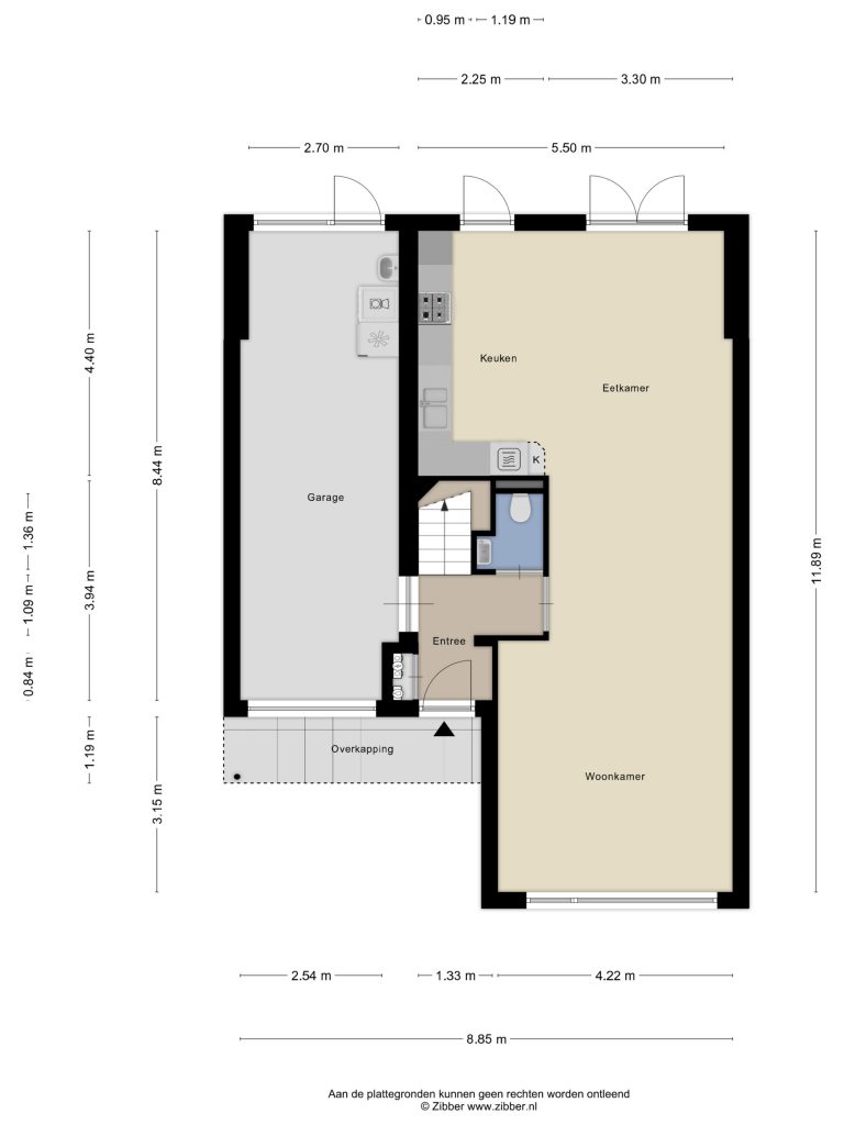
Via de oprit bereikt u de voordeur van de woning gelegen aan Buigeind 5 te Best en u betreedt de woning via de ruime entree/hal. Hier bevinden zich tevens de garderobe, de meterkast, de separate toiletruimte en de trapopgang naar de eerste verdieping.
De woonkamer is erg licht te noemen vanwege de grote raampartijen aan zowel de voor- als achterzijde van de woning. Aan de achterzijde heeft u via dubbele openslaande tuindeuren toegang tot de fraai aangelegde en onderhoudsvriendelijke achtertuin. Tevens is de woonkamer ruim genoeg om een zitgedeelte en eetgedeelte te creëren. Om het klimaat ook tijdens de warme zomerdagen fijn te houden in huis is in de woonkamer een airco aanwezig.
Aan de achterzijde van de woning bevindt zich de open keuken welke geplaatst is in een hoekopstelling. De inbouwapparatuur bestaat uit onder andere een gaskookplaat, een afzuigkap, een luxe oven, een koelkast, een diepvriezer en een magnetron. De diverse boven- en onderkastjes zorgen voor voldoende bergruimte in de keuken. Via een tuindeur heeft u toegang tot de achtertuin.
Vanuit de entree/hal is de inpandige garage te bereiken. Hier bevinden zich de aansluitingen ten behoeve van de wasapparatuur, maar ook een praktische wastafel. Verder is de garage ideaal geschikt voor het stallen van uw fietsen en opslag van uw spullen.
Op de eerste verdieping zijn via de overloop drie ruime slaapkamers en een badkamer te bereiken. Twee slaapkamers zijn gelegen aan de achterzijde van de woning en de master bedroom is aan de voorzijde van de woning gelegen. Alle slaapkamers verkrijgen natuurlijke lichtinval door middel van grote ramen. Voor deze ramen zijn rolluiken aanwezig. De badkamer bevindt zich in het midden van de woning en is ingericht met een douche, een toilet en een wastafel in een fraai meubel.
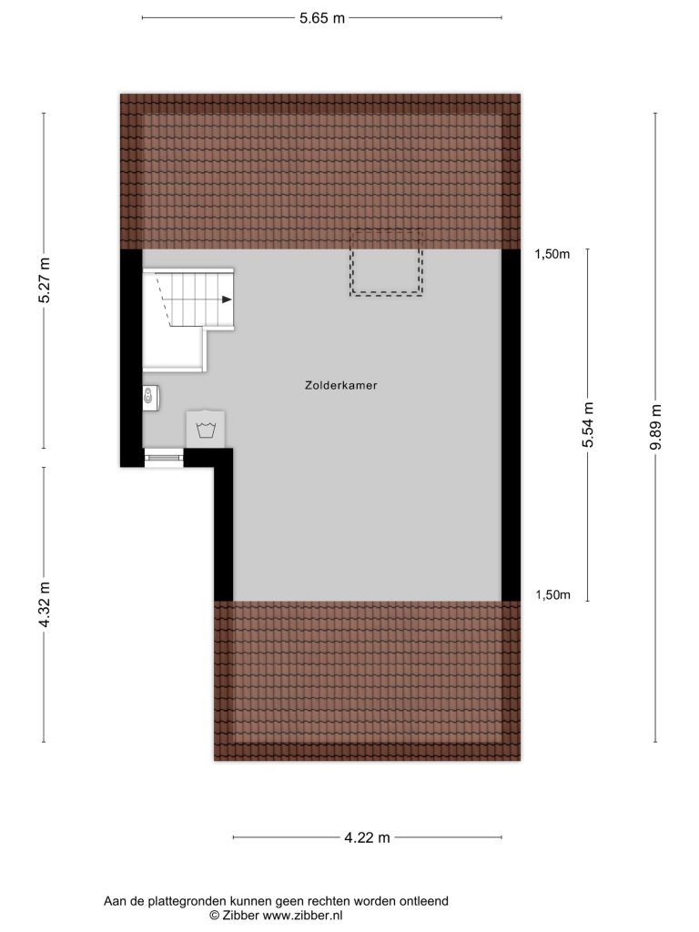
Via een vaste trap is de tweede verdieping te bereiken en hier treft u een open zolderruimte aan. Tevens bevinden zich hier ook de aansluitingen ten behoeve van de wasapparatuur en de opstelling van de cv-combiketel. Natuurlijke lichtinval wordt verkregen door middel van een dakraam.
Achter de woning bevindt zich de achtertuin. Deze is voorzien van een terras, bestrating en border met vaste beplantingen. Aan de woning bevindt zich een zonneluifel zodat u ook tijdens de zonnige dagen van uw tuin kunt genieten. Achterin de tuin is een vrijstaande berging gesitueerd. Deze berging is ideaal geschikt voor de opslag van uw tuingereedschap.
Bijzonderheden
– De CV-combiketel is geplaatst in 2019 en betreft het merk Remeha Aventa.
– De verwarming geschiedt door middel van radiatoren.
– De begane grondvloer en de verdiepingsvloeren zijn uitgevoerd in beton.
– De woning is aangesloten op het glasvezelnetwerk.
– De kozijnen zijn uitgevoerd in hardhout met dubbele beglazing.
– Gelegen in de jonge en kindvriendelijke woonwijk “Heuveleind” met om de hoek een basisschool, peuterspeelzaal, kinderdagopvang en winkelcentrum Heivelden.
Waarborgsom/bankgarantie
Verkopers verlangen een waarborgsom/bankgarantie ter grootte van 10% van de koopsom.
Locatie
De woning is gelegen in de gewilde, jonge woonwijk “Heuveleind”. Het winkelcentrum, de peuterspeelzaal en de basisschool bevinden zich op slechts enkele minuten lopen van de woning, terwijl ook het centrum op korte afstand van de woonwijk is gelegen. De ontsluitingswegen zijn goed en snel te bereiken en ook het NS-station is gemakkelijk te bereiken.
Kenmerken
- Status
- Beschikbaar
- Koopprijs
- € 579.000,- k.k.
- Adres
- Buigeind 5
- Postcode
- 5685 DN
- Plaats
- Best
- Land
- Nederland
Overdracht
- Aanvaarding
- In overleg
Bouw
- Objecttype
- Woonhuis
- Bouwjaar
- 1997
Oppervlakte en inhoud
- Woonoppervlakte
- 142 m2
- Gebruiksoppervlakte overige functies
- 23 m2
- Oppervlakte externe bergruimte
- 9 m2
- Buitenruimtes gebouwgebonden of vrijstaand
- 5 m2
- Perceel oppervlakte
- 218 m2
- Inhoud
- 587 m3
Indeling
- Aantal kamers
- 4
- Aantal slaapkamers
- 3
- Voorzieningen
- Rolluiken, Buitenzonwering, Airconditioning, Dakraam, Glasvezel kabel, Natuurlijke ventilatie
- Perceel oppervlakte
- 218 m2
- Inhoud
- 587 m3
Buitenruimte
- Liggingen
- Aan rustige weg, In woonwijk
- Tuintypen
- Achtertuin, Voortuin
- Positie
- Noordwest
Garage
- Soorten
- Inpandig
- Voorzieningen
- Elektra
- Positie
- Noordwest