Tegen een bos gelegen, op loopafstand van het centrum, diverse speelvelden en een school, vindt u deze twee-onder-één-kapwoning. Door de ruime opzet van het woon- en eetgedeelte, de half-open keuken, bijkeuken en garage op de begane grond, drie slaapkamers en een badkamer op de verdieping is dit de ideale gezinswoning. De groene achtertuin beschikt over een gazon, bestrating en diverse vaste beplantingen. Heeft u interesse? Kijk dan snel verder.
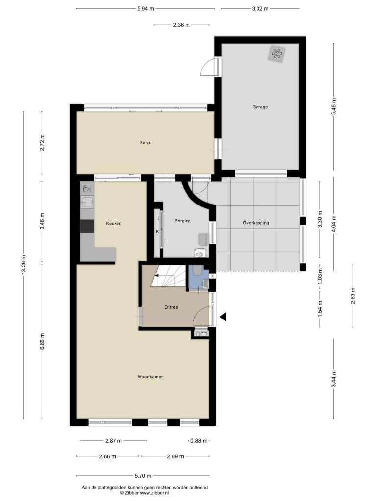
Via de oprit met carport bereikt u de voordeur van de woning gelegen aan Reenstraat 5 te Bergeijk. De woning betreedt u via de entree/hal. Hier treft u de garderobe, de meterkast, de separate toiletruimte en de trapopgang naar de eerste verdieping aan. Vanuit hier heeft u toegang tot de woonkamer.
De woonkamer bevindt zich aan de voorzijde van de woning en is erg licht te noemen vanwege de grote raampartijen aan de voorzijde van de woning. De woonkamer is ruim genoeg om een zit- en een eetgedeelte te creëren.
De half-open keuken bevindt zich in het midden van de woning en is geplaatst in een hoekopstelling. De inbouwapparatuur bestaat uit onder andere een keramische kookplaat, een afzuigkap, een bakoven en een vaatwasser.
Via een schuifdeur is de gezellige serre te bereiken. Hier kunt u ook tijdens regenachtige dagen van uw tuin genieten, maar ook een gezellige avond met uw familie of vrienden beleven. De schuifpui naar buiten betreft een aluminium pui met schuifdeuren.
De praktische bijkeuken is vanuit de serre te bereiken en hier treft u de opstelling van de cv-combiketel en de aansluitingen ten behoeve van de wasapparatuur aan. Hier bevindt zich een praktische kastenwand.
De garage is tevens vanuit de serre te bereiken en is gebouwd in ca. 1970. Via een stalen kanteldeur is de garage te bereiken en aan de achterzijde via een loopdeur. Deze garage is ideaal geschikt voor het stallen van uw fietsen en uw tuingereedschap.
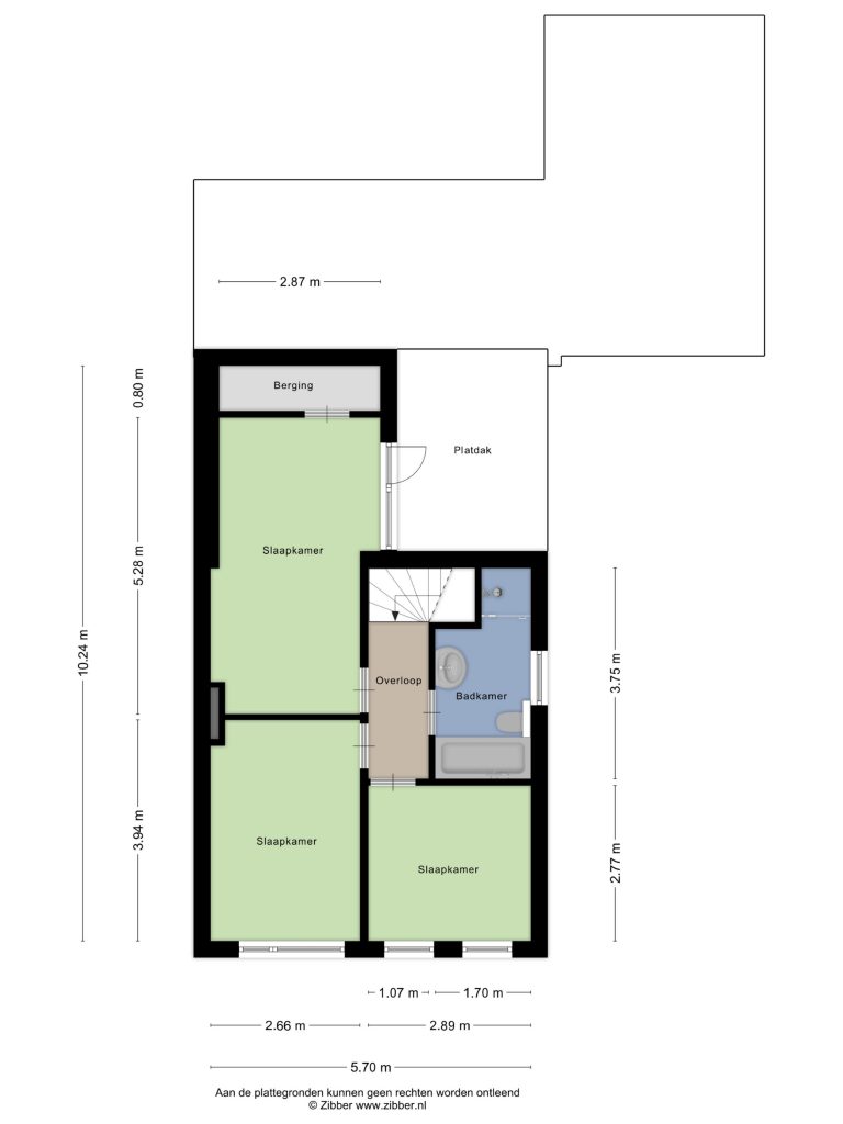
Via een trap is de eerste verdieping te bereiken en vanuit de overloop zijn drie ruime slaapkamers en een badkamer te bereiken. Twee slaapkamers zijn gelegen aan de voorzijde van de woning en één slaapkamer is gelegen aan de achterzijde van de woning. De slaapkamer aan de achterzijde heeft toegang tot het platte dak met mogelijkheid tot een balkon en de beschikking over een vaste kastenwand.
De badkamer is ingericht met een douche, een ligbad, een toilet en een wastafel in een meubel. Een raam zorgt voor natuurlijke ventilatie en natuurlijke lichtinval naast de mechanische ventilatie.
Achter de woning heeft u de beschikking over de groene achtertuin georiënteerd op het zonnige zuiden. De tuin is ingericht met een terras, een gazon en diverse vaste beplantingen. Tevens bevindt zich in de tuin een berging welke is opgetrokken uit hout.
Bijzonderheden
– De verwarming geschiedt door middel van radiatoren.
– De begane grondvloer en de verdiepingsvloer zijn uitgevoerd in beton.
– De woning is aangesloten op het glasvezelnetwerk.
– De kozijnen zijn uitgevoerd in hout met gedeeltelijk dubbele beglazing.
Waarborgsom/bankgarantie
Verkopers verlangen een waarborgsom/bankgarantie ter grootte van 10% van de koopsom.
Locatie
Aan de Reenstraat is het rustig wonen, maar loopt u toch binnen vijf minuten het centrum van Bergeijk in. Daarnaast bevindt de woning zich op loopafstand van diverse basisscholen en de Bergeijkse bossen. Op een steenworp afstand ligt een groen speelveld waar de kinderen heerlijk kunnen gaan spelen.
Kenmerken
- Status
- Onder bod
- Koopprijs
- € 425.000,- k.k.
- Adres
- Reenstraat 5
- Postcode
- 5571 PS
- Plaats
- Bergeijk
- Land
- Nederland
Overdracht
- Aanvaarding
- In overleg
Bouw
- Objecttype
- Woonhuis
- Bouwjaar
- 1965
Oppervlakte en inhoud
- Woonoppervlakte
- 99 m2
- Gebruiksoppervlakte overige functies
- 42 m2
- Oppervlakte externe bergruimte
- 6 m2
- Buitenruimtes gebouwgebonden of vrijstaand
- 25 m2
- Perceel oppervlakte
- 303 m2
- Inhoud
- 500 m3
Indeling
- Aantal kamers
- 4
- Aantal slaapkamers
- 3
- Voorzieningen
- Mechanische ventilatie, TV kabel, Schuifpui, Natuurlijke ventilatie
- Perceel oppervlakte
- 303 m2
- Inhoud
- 500 m3
Buitenruimte
- Liggingen
- Aan rustige weg, In woonwijk
- Tuintypen
- Achtertuin, Voortuin
- Positie
- Zuid
Garage
- Soorten
- Inpandig, Carport
- Voorzieningen
- Elektra
- Positie
- Zuid