Gemert – Zandstraat 9

Te huur: Moderne en representatieve bedrijfsunit aan de Zandstraat in Gemert!

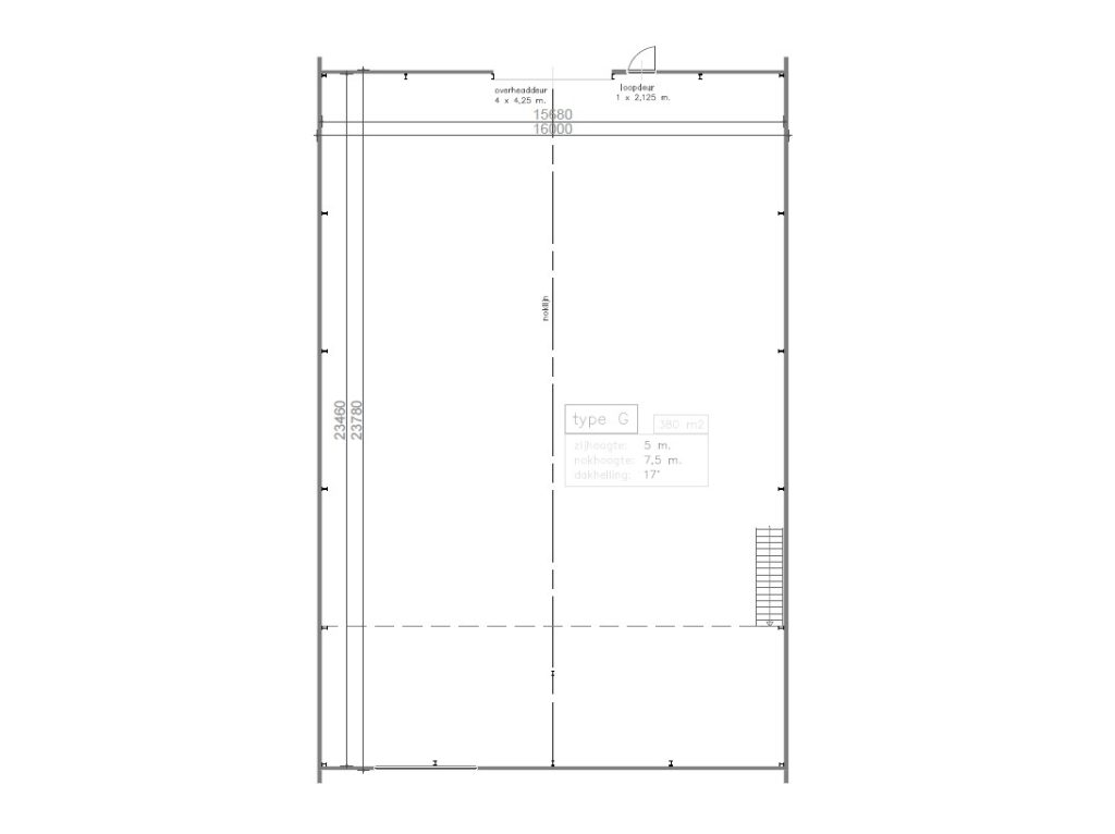
Bent u op zoek naar een goed bereikbare, moderne en representatieve bedrijfsruimte in Gemert? Dan is deze bedrijfsunit aan de Zandstraat absoluut het overwegen waard. Met een totale oppervlakte van 422 m², biedt deze unit alle ruimte voor ondernemers die op zoek zijn naar flexibiliteit en kwaliteit. Of het nu gaat om opslag, productie, een werkplaats of een combinatie hiervan – de mogelijkheden zijn legio.

De unit is degelijk en duurzaam gebouwd, zodat u verzekerd bent van een solide en toekomstbestendig pand. Zowel het dak als de gevels zijn afgewerkt met hoogwaardige sandwichpanelen die zorgen voor een goede isolatie én een professionele uitstraling.

De overheaddeur is een belangrijk onderdeel van de unit en is uitgevoerd met een elektrische aandrijving (400V). Deze deur is ruim bemeten, met een afmeting van 4 x 4 meter, en maakt de unit uitstekend toegankelijk.

De unit wordt opgeleverd met een toilet en fonteintje en de aansluiting voor een pantry is aanwezig. De hoofdvoorziening is geschikt voor 3 x 25 ampère, waarmee u voldoende capaciteit heeft voor uiteenlopende bedrijfsdoeleinden.

De locatie van de bedrijfsunit aan de Zandstraat in Gemert ligt op het voormalige Huisman-terrein, gelegen aan de zuidzijde van de N272. Het terrein is strategisch goed bereikbaar met verbindingen tot de A50, A67 en A73 – een zeer centrale ligging tussen Eindhoven, Helmond en Veghel.

Huurprijs: PRIJS OP AANVRAAG exclusief BTW
Waarborgsom: 3 maanden huur exclusief BTW
Minimale huurperiode: 2 jaar
Oplevering: april 2026

Deze bedrijfsunit is uitermate geschikt voor ondernemers die waarde hechten aan uitstraling, kwaliteit en een praktische indeling.

Nieuwsgierig geworden? Neem vrijblijvend contact met ons op voor meer informatie of het plannen van een bezichtiging. We laten u graag de mogelijkheden zien.

Voor meer informatie, onderstaand de website behorende bij het project aan de Zandstraat Gemert

Zandstraat Gemert

Het object is gelegen in het bestemmingsplan ”Bedrijventerrein Zandstraat” van de gemeente Gemert-Bakel en heeft daarin de bestemming ”Bedrijfsdoeleinden -B3-”. Binnen deze bestemming zijn de aangewezen gronden bestemd voor:
a. Industriele en ambachtelijke bedrijven bedrijfsactiviteiten die genoemd staan in milieucategorie 2, 3.1 en 3.2 van de lijst van bedrijfsactiviteiten;
b. Groothandelsbedrijven en groothandelsactiviteiten die genoemd staan in milieucategorie 2, 3.1 en 3.2 van de lijst van bedrijfsactiviteiten.
c. Een kantine die ondergeschikt is aan en ten dienste staat van de doeleinden als genoemd in sub a en sub b;
d. Productiegebonden detailhandel, die ten dienste staat van en ondergeschikt is aan de bedrijven en bedrijfsactiviteiten als genoemd in sub a en sub b;

Voor een uitgebreide beschrijving verwijzen wij u naar het Omgevingsloket

Kenmerken

Adres
Zandstraat 9
Postcode
5421 WK
Plaats
Gemert
Land
Nederland
Prijs
Prijs op aanvraag

Overdracht

Status
Beschikbaar
Type aanvaarding
In overleg
BTW belast
Ja

Bouw

Hoofdbestemming
Bedrijfsruimte
Jaar
2025

Oppervlakten

Bedrijfsruimte bedrijfshal
380 m2
Bedrijfshal in units vanaf
380 m2