Te huur: Gloednieuw aanpasbaar bedrijfsobject op bedrijventerrein De Vlonder – Boekel
Binnenkort beschikbaar – oplevering bouwvak 2026
Op het moderne en veelzijdige bedrijventerrein De Vlonder in Boekel wordt een gloednieuw bedrijfsobject gerealiseerd, dat volledig naar wens kan worden ingericht. Een unieke kans voor ondernemers die opzoek zijn naar een toekomstbestendige bedrijfsruimte met flexibiliteit, uitstraling en bereikbaarheid.
Het object onderscheidt zich door zijn aanpasbare opzet. De ruimte kan geheel of gedeeltelijk worden gehuurd, waardoor verschillende gebruiksscenario’s mogelijk zijn. Of u nu behoefte heeft aan een compacte unit of een groter geheel: de indeling is vrij in te delen en kan worden aangepast aan uw bedrijfsactiviteiten.
Verwachte oplevering: Bouwvak 2026
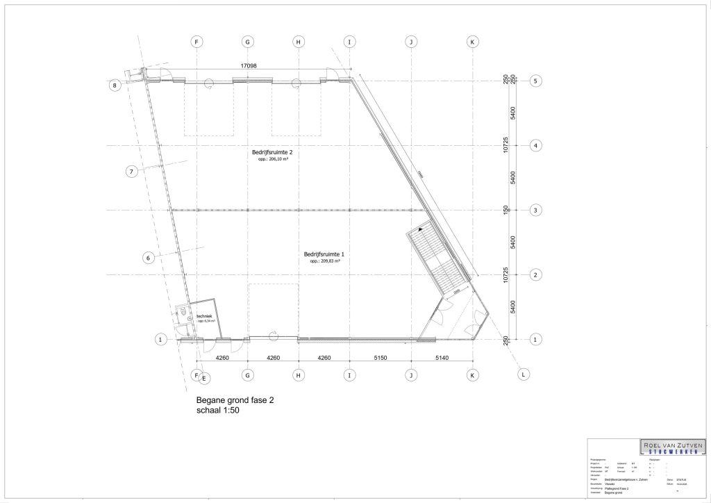
Het object is geheel te huren op basis van in totaal ca. 859 m² groot verdeeld over de begane grond en de eerste verdieping, maar is in diverse scenario’s te huren. Het object is tevens al te huren op basis van 393 m² verdeeld over de begane grond en de eerste verdieping.
Opleveringsniveau: De bedrijfsruimte wordt casco verhuurd, waarbij maatwerk mogelijk is naar uw wens. Verder zijn er op het eigen terrein voldoende verlichte parkeermogelijkheden. De buitenzijde van het object is afgewerkt met zilvergrijze sandwichpanelen en het geheel is voorzien van duurzame aluminium kozijnen, ramen en deuren die bijdragen aan de veiligheid en uitstraling van het gebouw. Het dak is voorzien van hoogwaardige kunststof dakbedekking, wat zorgt voor een goed geïsoleerde en waterdichte kantoorruimte.
Huurprijs en -condities:
Huurprijs: Prijs op aanvraag
Waarborgsom: Ter grootte van 3 maanden huur/incl. BTW
Minimale huurperiode: Minimaal 5 jaar
Aanvaarding: In overleg
Huurindexering: Jaarlijks, voor het eerst één jaar na huuringangsdatum, op basis van het maandprijsindexcijfer volgende de consumentenprijsindex ‘’alle huishoudens’’ (2015 = 100), dan wel de meest recente tijdsbasis, gepubliceerd door het Centraal Bureau voor de Statistiek.
BTW: De huur is MET BTW belast; indien huurder niet aan het ‘’90%-criterium’’ (aandeel belaste prestaties) voldoet, zal er van rechtswege sprake zijn van omzetbelasting vrijgestelde huur. Alsdan wordt de overeengekomen kale huurprijs, exclusief omzetbelasting, zodanig verhoogt, dat het voor verhuurder ontstane financiële nadeel wordt gecompenseerd.
Locatie: De kantoorruimte is gelegen op bedrijventerrein De Vlonder te Boekel. Dit bedrijventerrein van circa 30 hectare biedt ruimte voor een brede diversiteit aan bedrijfsactiviteiten. Het object is te bereiken via de N605 welke overloopt in de N272 (Boxmeer – N279) en in de N264 (A50 – Gennep). Boekel zelf is karakteristiek en beschikt over een ruime beschikbaarheid tot voorzieningen.
Het object is gelegen in het bestemmingsplan:
‘’De Vlonder West fase 3, Boekel’’ van de gemeente Boekel en heeft daarin de bestemming ‘’bedrijventerrein’’. Binnen deze bestemming zijn de aangewezen gronden bestemd voor:
– Categorieën 2 en 3.1 ter plaatse van de aanduiding ‘bedrijf tot en met categorie 3.1’
– Productiegebonden detailhandel;
– Kantoren als ondergeschikte functie bij de bedrijven;
– Ontsluitingswegen;
– Opslag en uitstalling;
– Parkeergelegenheden;
– Voorzieningen voor verkeer en verblijf;
– Groenvoorzieningen en verhardingen;
– Nutsvoorzieningen;
– Water en waterhuishoudkundige voorzieningen.
Bron: Omgevingsloket
Kortom: een modern, flexibel en duurzaam bedrijfsobject op een goed bereikbare locatie – ideaal voor de ondernemer die klaar is voor de toekomst!
Kenmerken
- Adres
- De Vlonder ong
- Postcode
- 5427 DH
- Plaats
- Boekel
- Land
- Nederland
Overdracht
- Status
- Beschikbaar
- Type aanvaarding
- In overleg
- BTW belast
- Ja
Bouw
- Hoofdbestemming
- Bedrijfsruimte
- Jaar
- 2026
Oppervlakten
- Perceel
- 430 m2
- Bedrijfsruimte bedrijfshal
- 859 m2
- Bedrijfshal in units vanaf
- 393 m2